Podstrona: Mgr inż. arch. Aneta Czekaj laureatką Nagrody Ministra Rozwoju, Pracy i Technologii za projekt dyplomowy / POLITECHNIKA RZESZOWSKA im. Ignacego Łukasiewicza

Mgr inż. arch. Aneta Czekaj laureatką Nagrody Ministra Rozwoju, Pracy i Technologii za projekt dyplomowy

2021-07-22 , red.  Marta Jagiełowicz
kategoria: Wydarzenia
Od lewej: mgr inż. arch. Aneta Czekaj i dr. inż. arch. Cezary Szpytma,

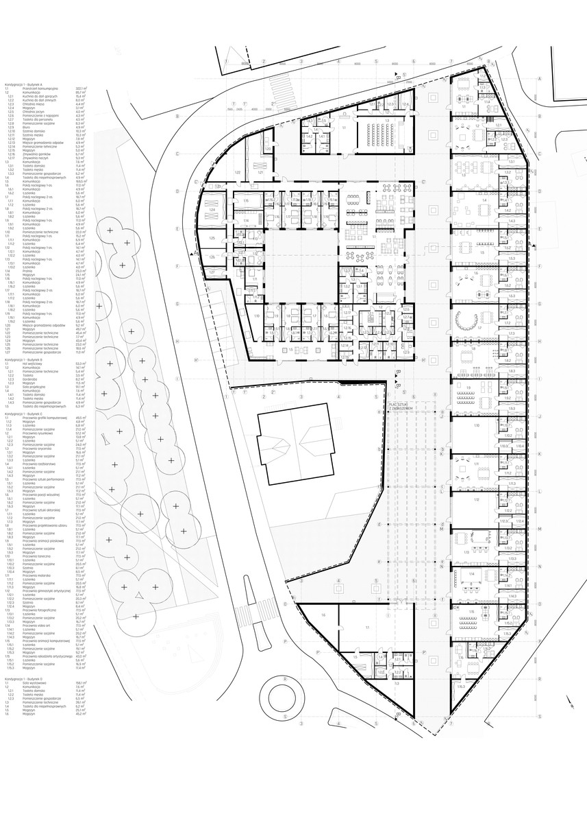
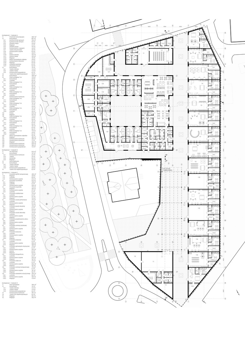
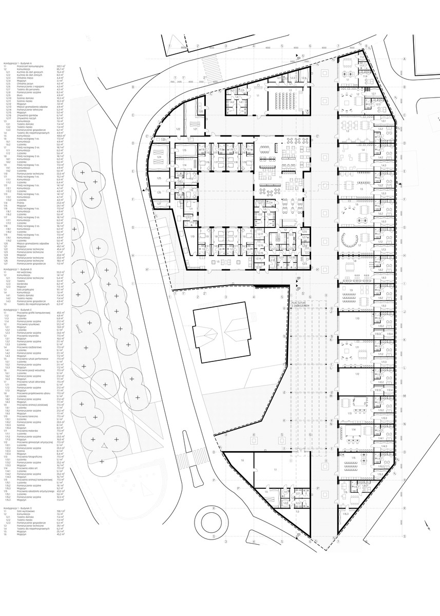
Aneta Czekaj, absolwentka kierunku architektura na Wydziale Budownictwa, Inżynierii Środowiska i Architektury Politechniki Rzeszowskiej została laureatką konkursu o Nagrodę Ministra Rozwoju, Pracy i Technologii na najlepsze prace dyplomowe. Promotorem nagrodzonej pracy „Architektura zachowań: praca. Ośrodek działalności twórczej” jest dr inż. arch. Cezary Szpytma. 

Zdaniem promotora dr. inż. arch. Cezarego Szpytmy praca dyplomowa Anety Czekaj pt. „Architektura zachowań: praca. Ośrodek działalności twórczej” skupiona jest na poszukiwaniu nowej funkcji uzupełniającej ofertę miejską Rzeszowa. Dyplomantka zaprojektowała przestrzeń o charakterze mikroświata, stanowiącą połączenie pracowni artystycznych z przestrzenią wystawienniczą i miejscem edukacji artystycznej. „Projekt mojej dyplomantki odbieram jako jej dojrzałą wypowiedź na temat codziennych trudności wykonywania zawodów artystycznych w Polsce oraz niezwykłej roli, jaką sztuka ma do odegrania w tworzeniu współczesnej kultury. Zaprojektowana hybryda funkcjonalna miałaby szansę stać się prawdziwą innowacją w obszarze sztuki: z jednej strony w namacalny wręcz sposób przybliżałaby sztukę mieszkańcom i turystom, z drugiej zapewniałaby artystom komfort związany posiadaniem i utrzymaniem pracowni” - mówił promotor.

Szczególną wartością projektu jest rzadko spotykane w pracy projektowej autentyczne odniesienie się do wiedzy z obszaru z innych dyscyplin naukowych, w tym wypadku do teorii psychologicznych. Praca jest zaangażowaną próbą implementacji tych teorii w środowisku architektonicznym. Samo rozwiązanie architektoniczne jest również na wysokim poziomie. Porządkuje bałagan przestrzenny istotnego fragmentu miasta. Autorce udało się sprawnie zrealizować rozbudowany program, a poszczególne części założenia zostały zintegrowane subtelną, wręcz ascetyczną formą, której lapidarność wydaje się być doskonałym tłem dla planowanych w jej ramach działań.

Powrót do listy aktualności

Nasze serwisy używają informacji zapisanych w plikach cookies. Korzystając z serwisu wyrażasz zgodę na używanie plików cookies zgodnie z aktualnymi ustawieniami przeglądarki, które możesz zmienić w dowolnej chwili. Więcej informacji odnośnie plików cookies.